︎
kaylee tucker
all
architecture
structures
fabrication
research
education
cultural
housing
landscape
español
studio
history
exploration
michigan
illinois
barcelona
competition
technical
precedent
video
analysis
climate
music
photography
sketches
about
cv
portfolio
random
« back
forward »
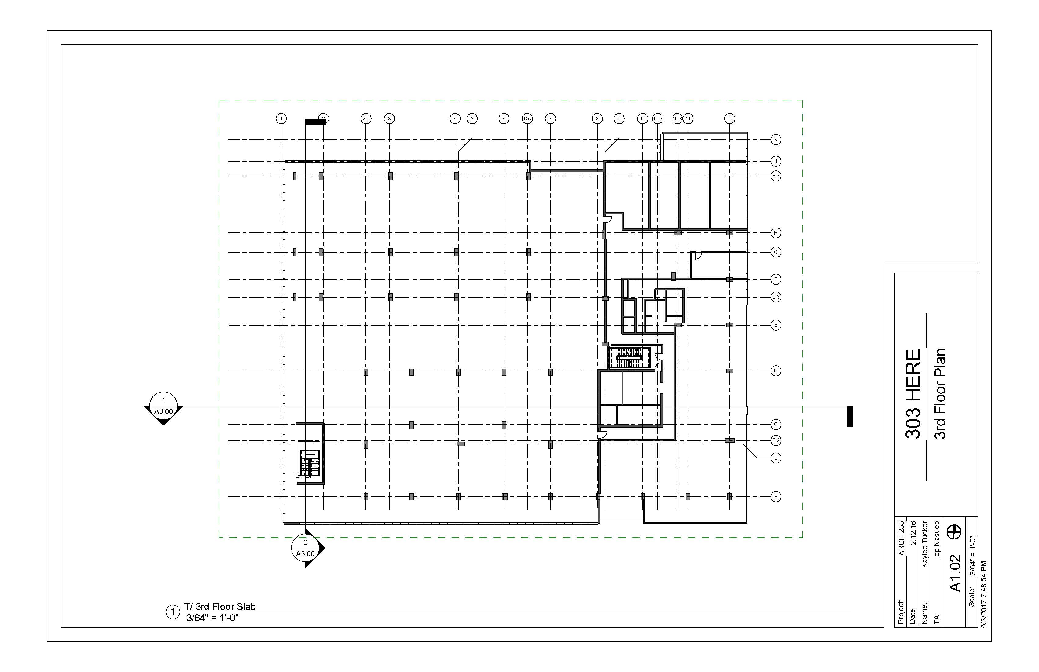
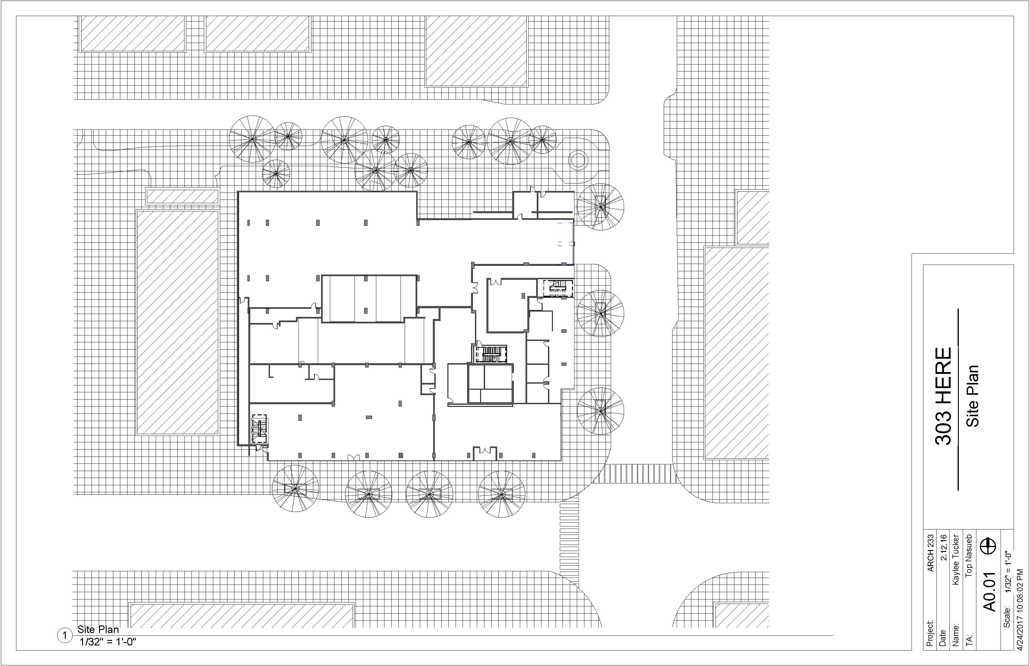
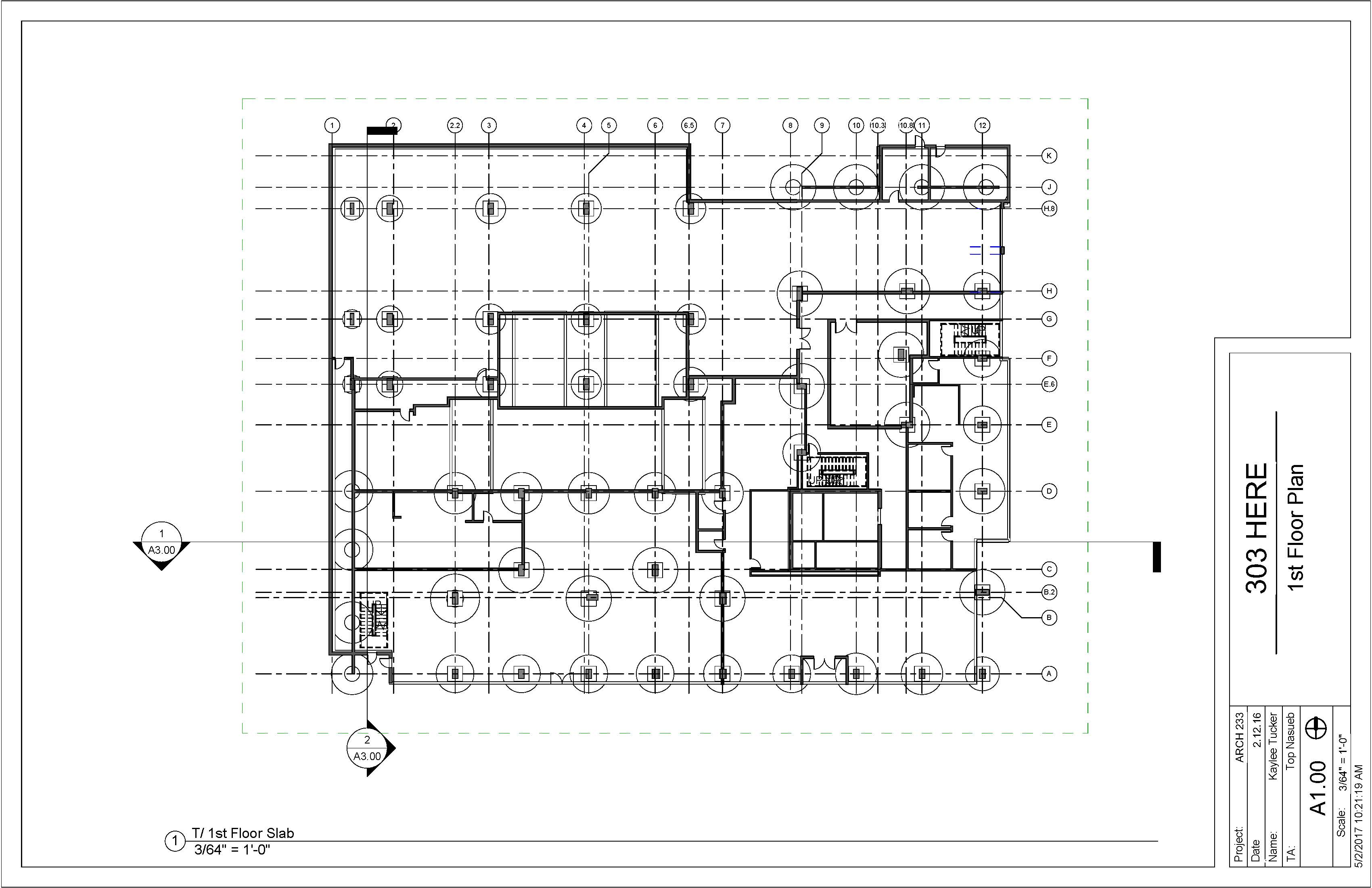
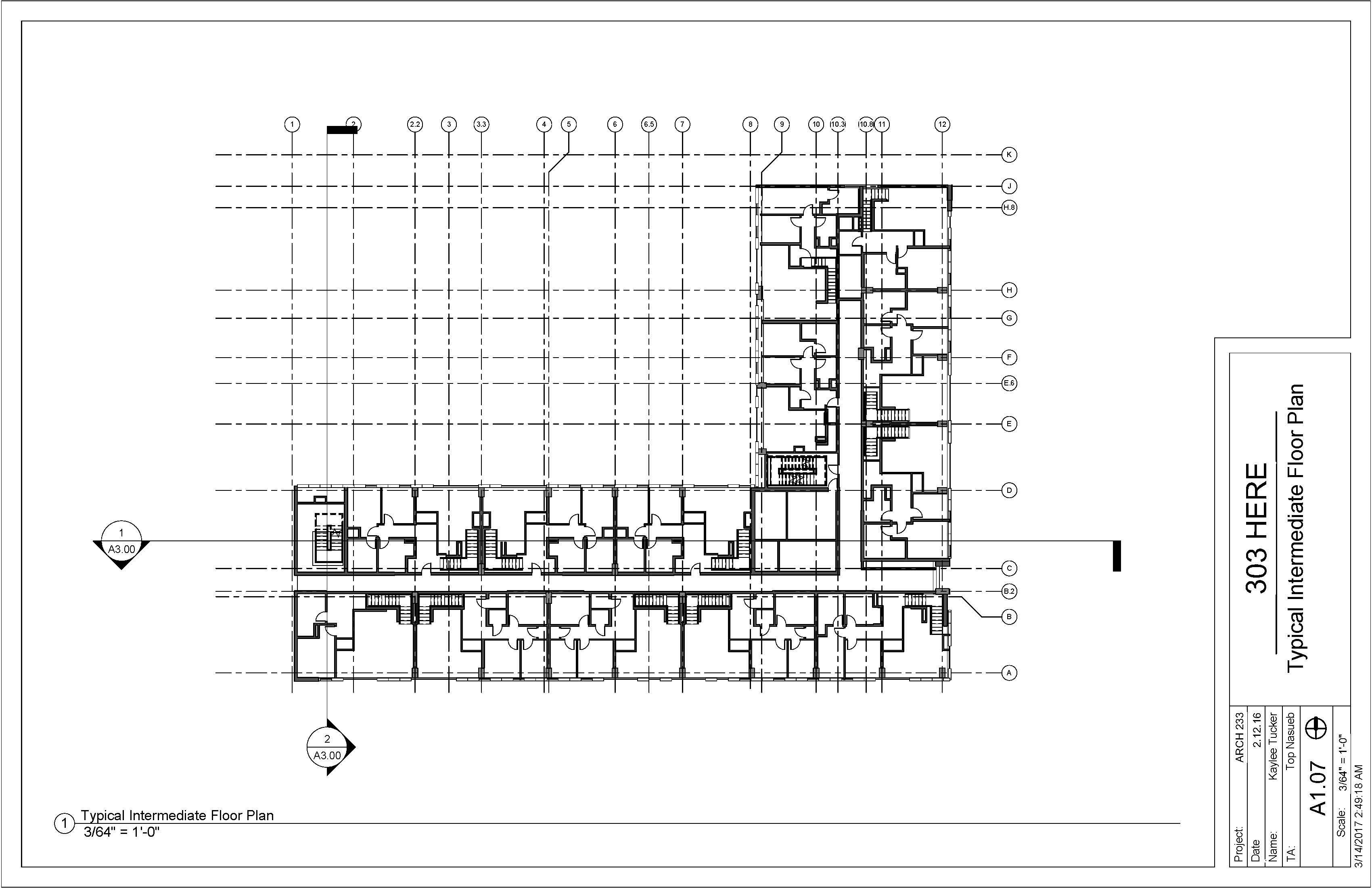
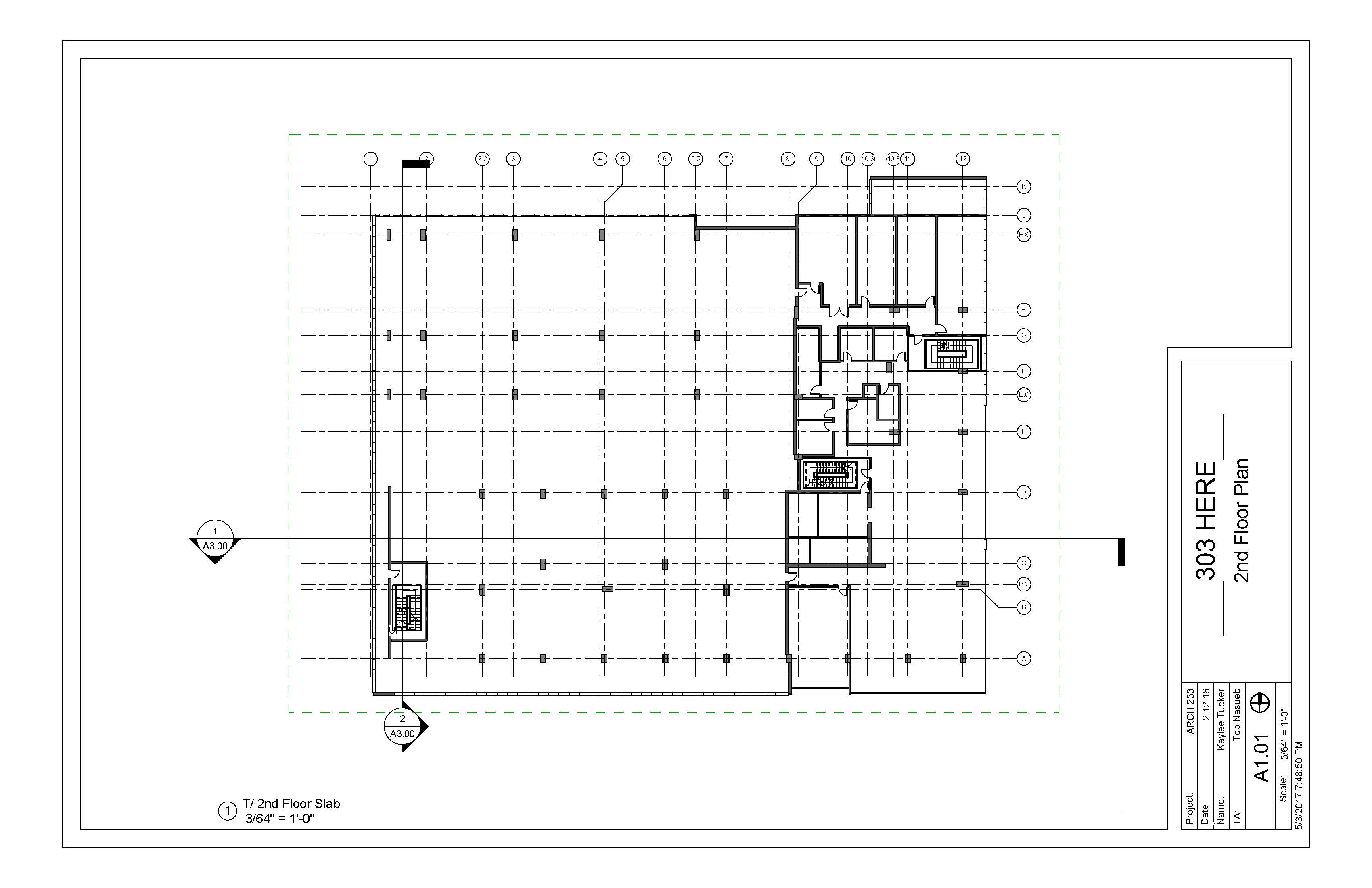
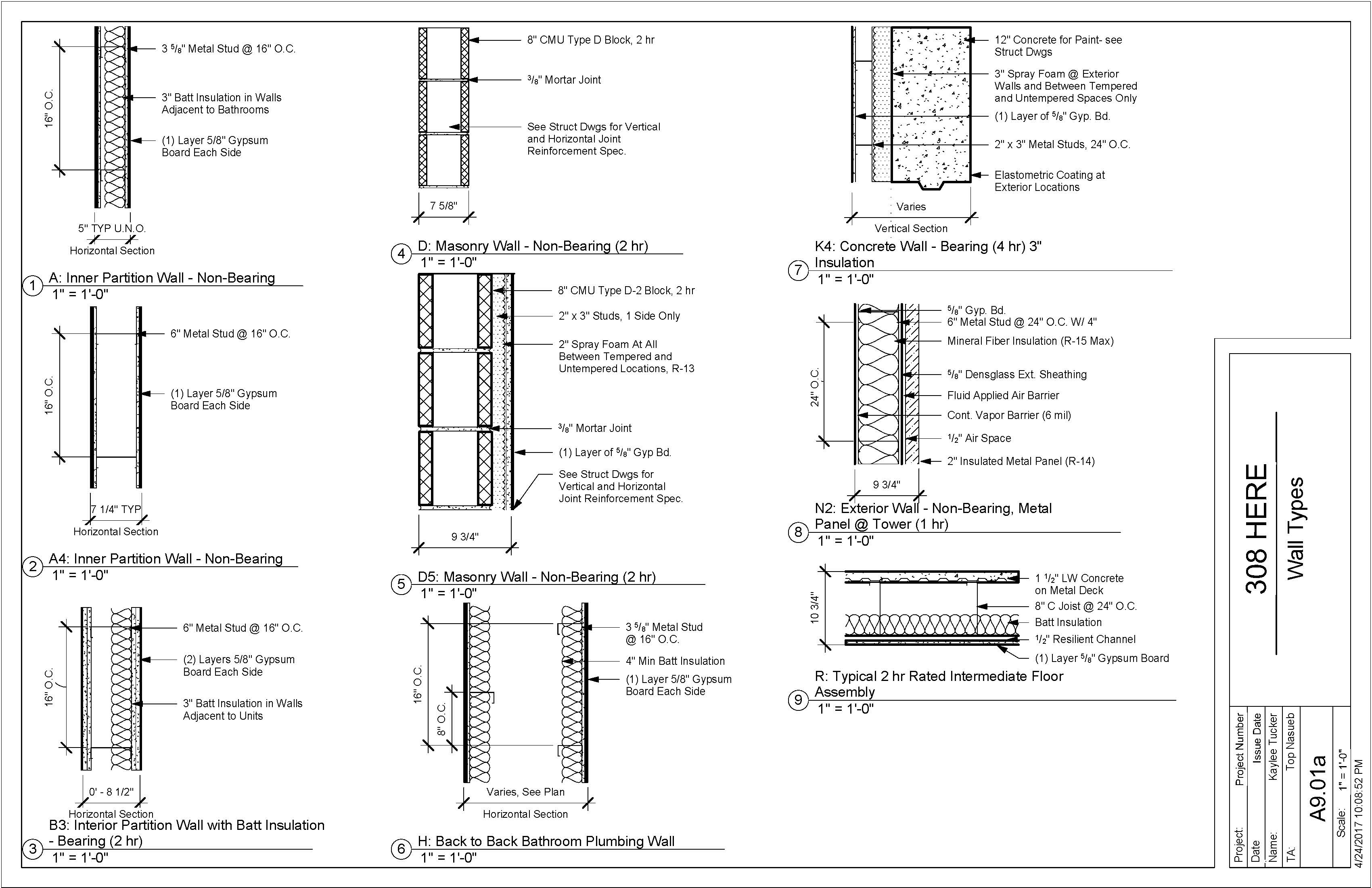
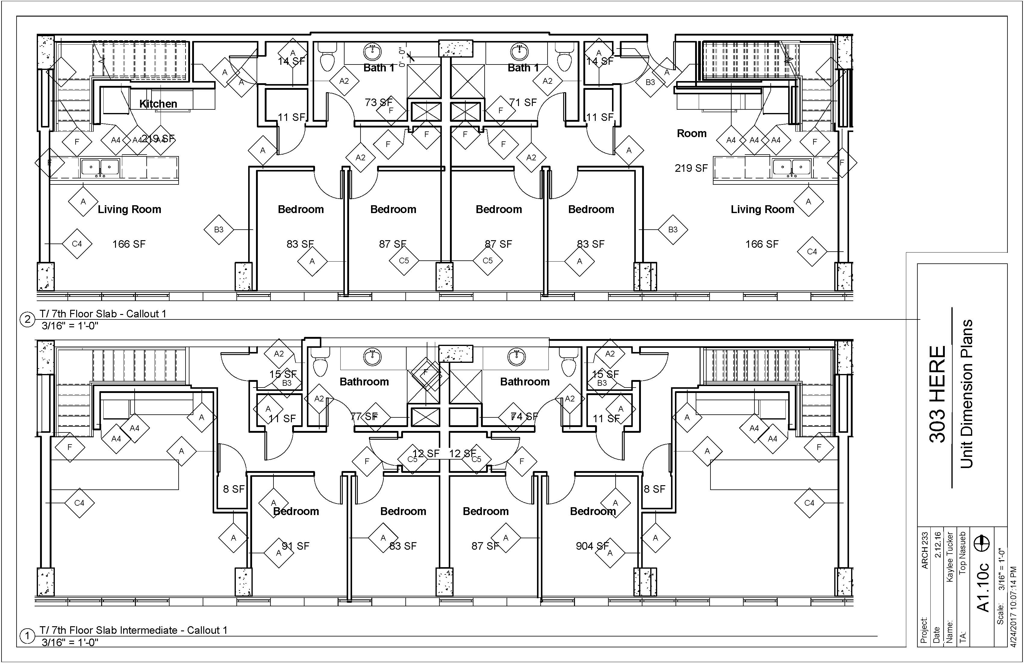
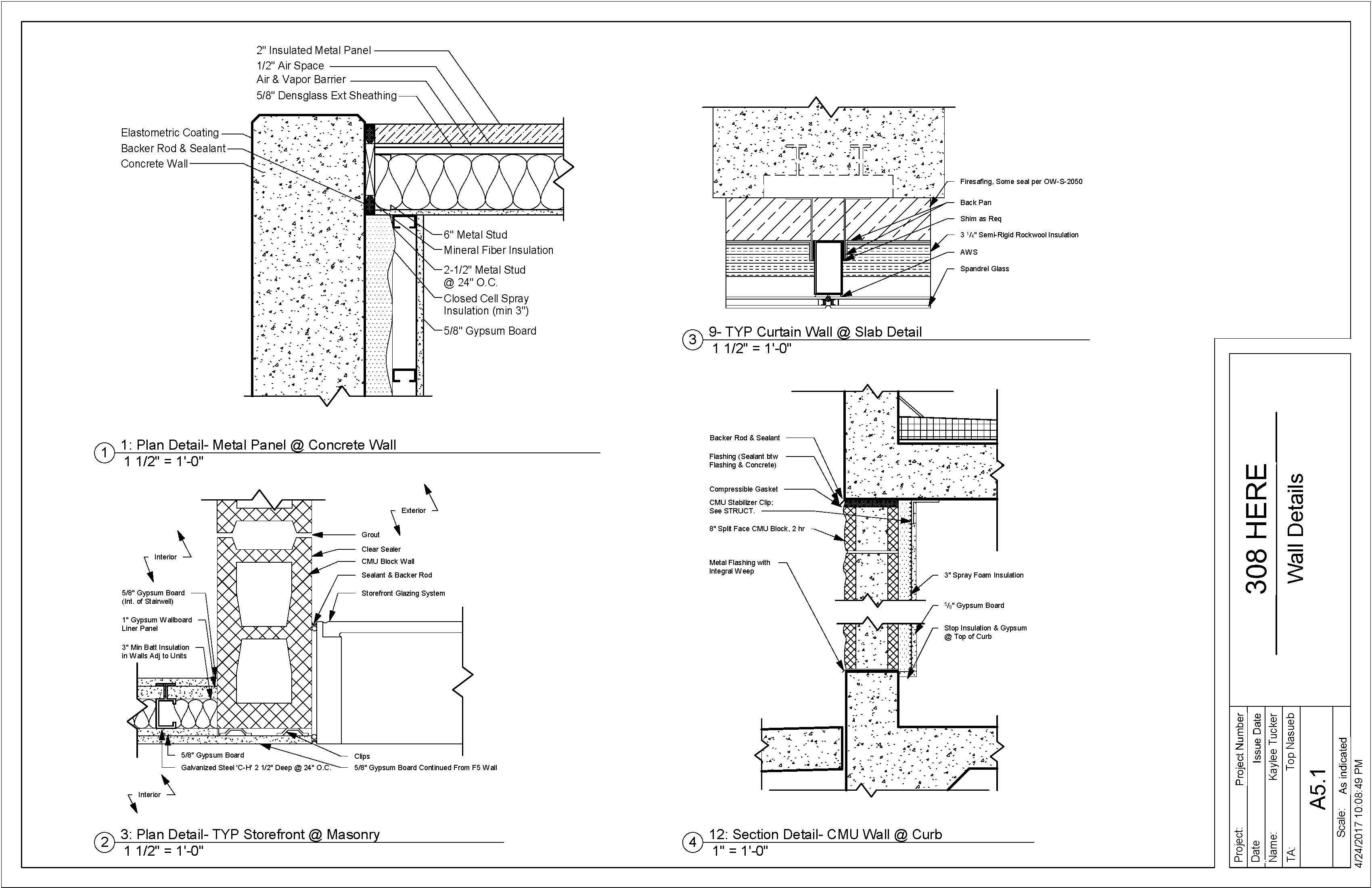
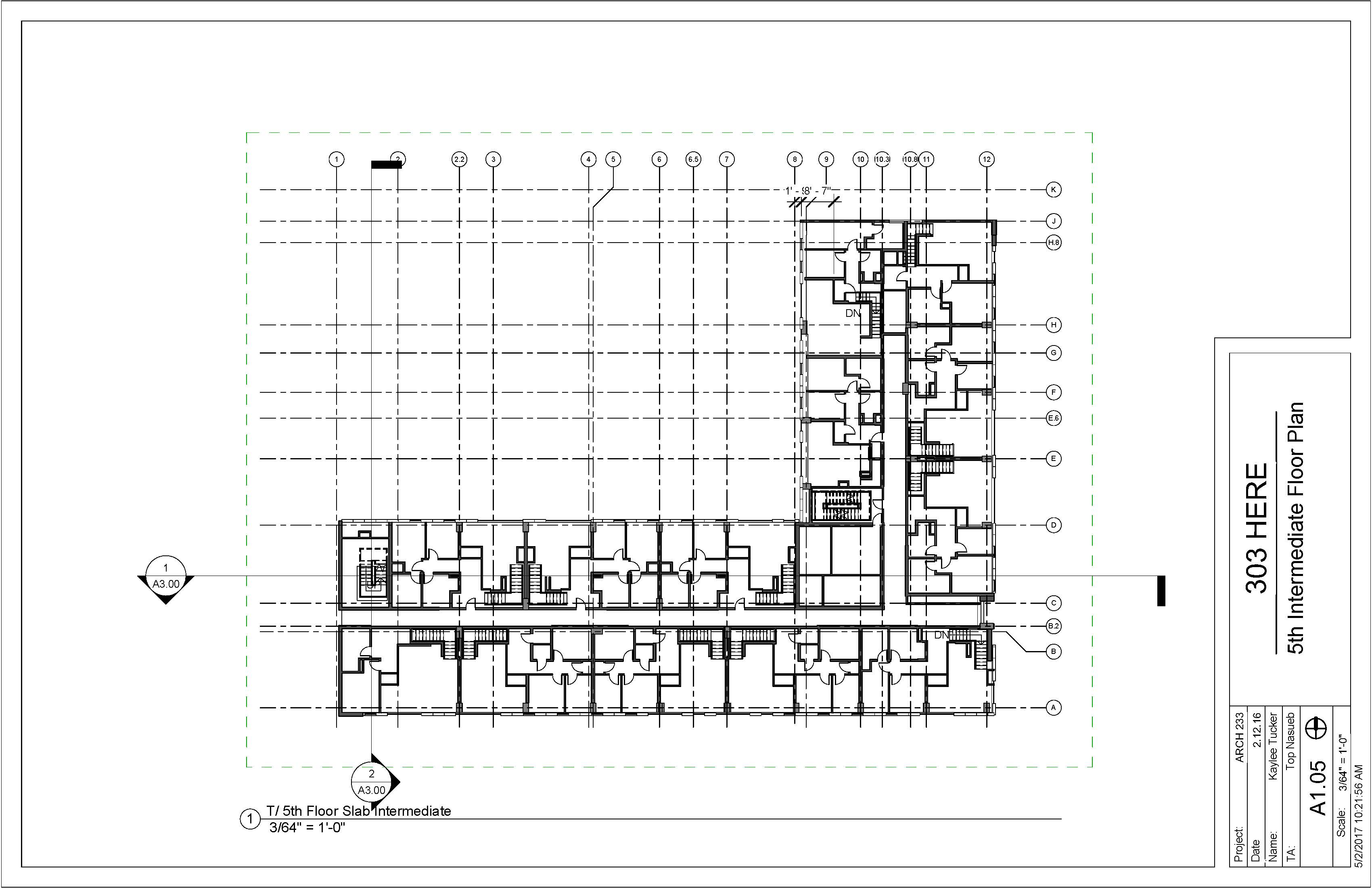
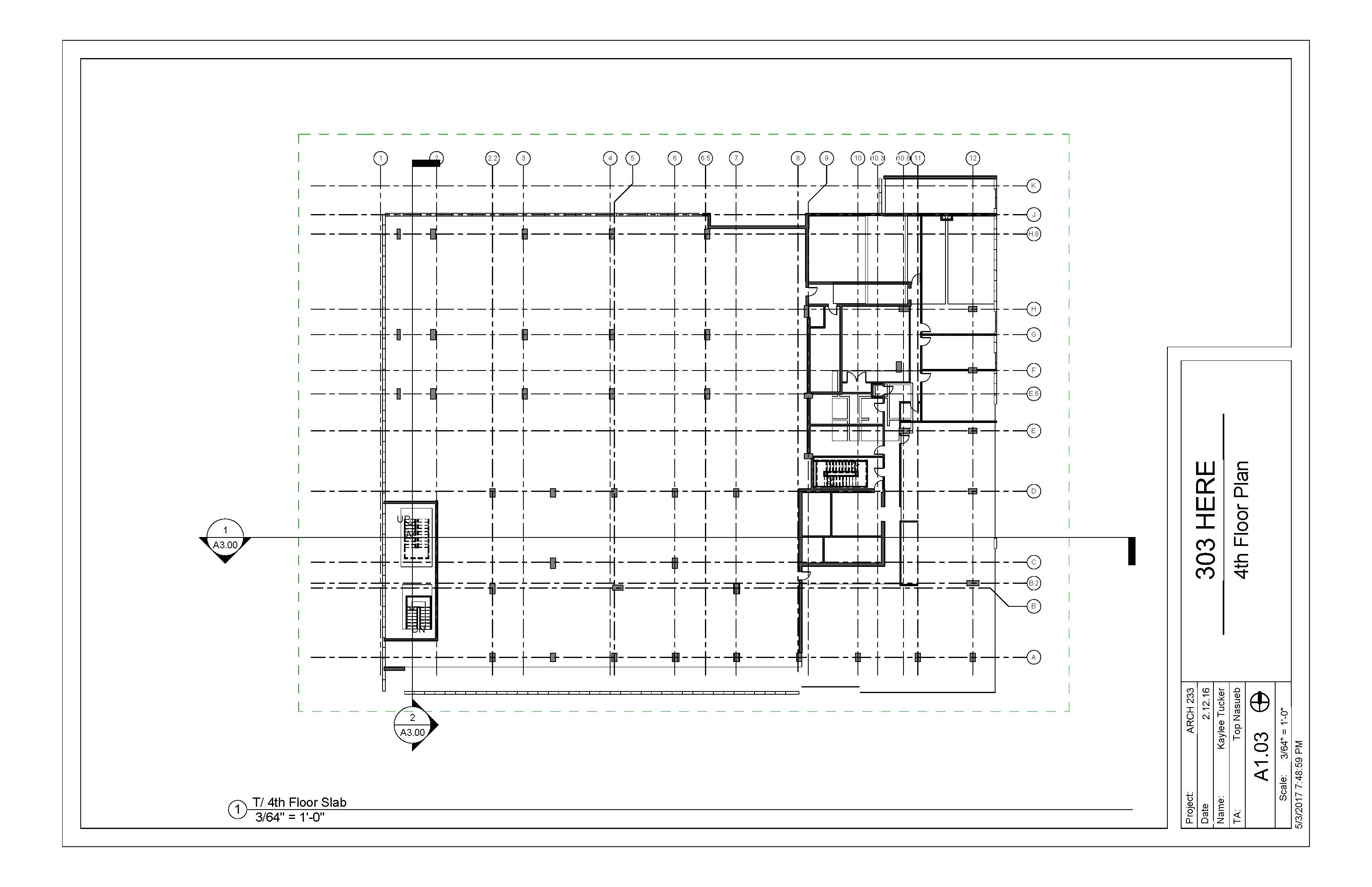
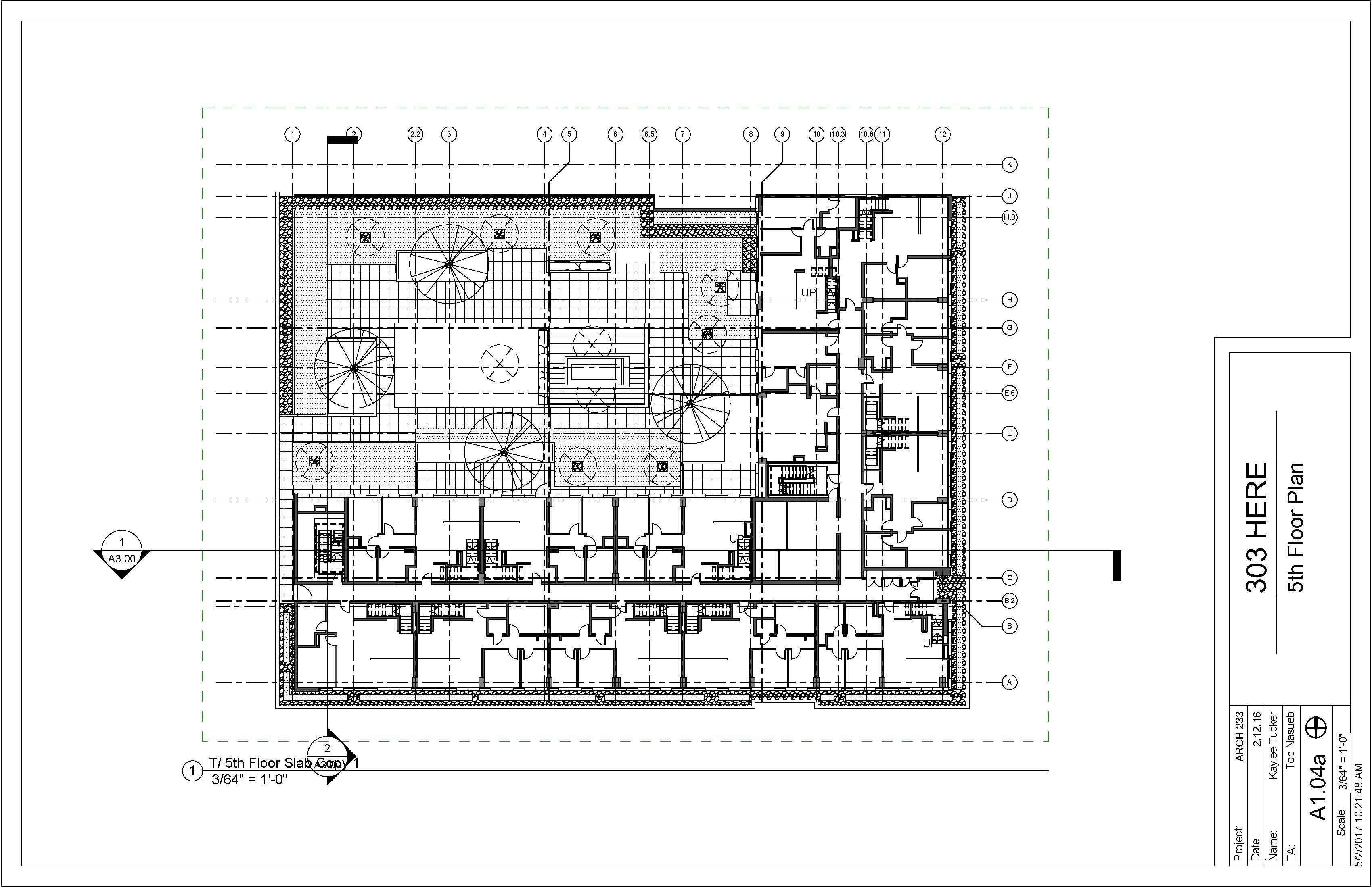
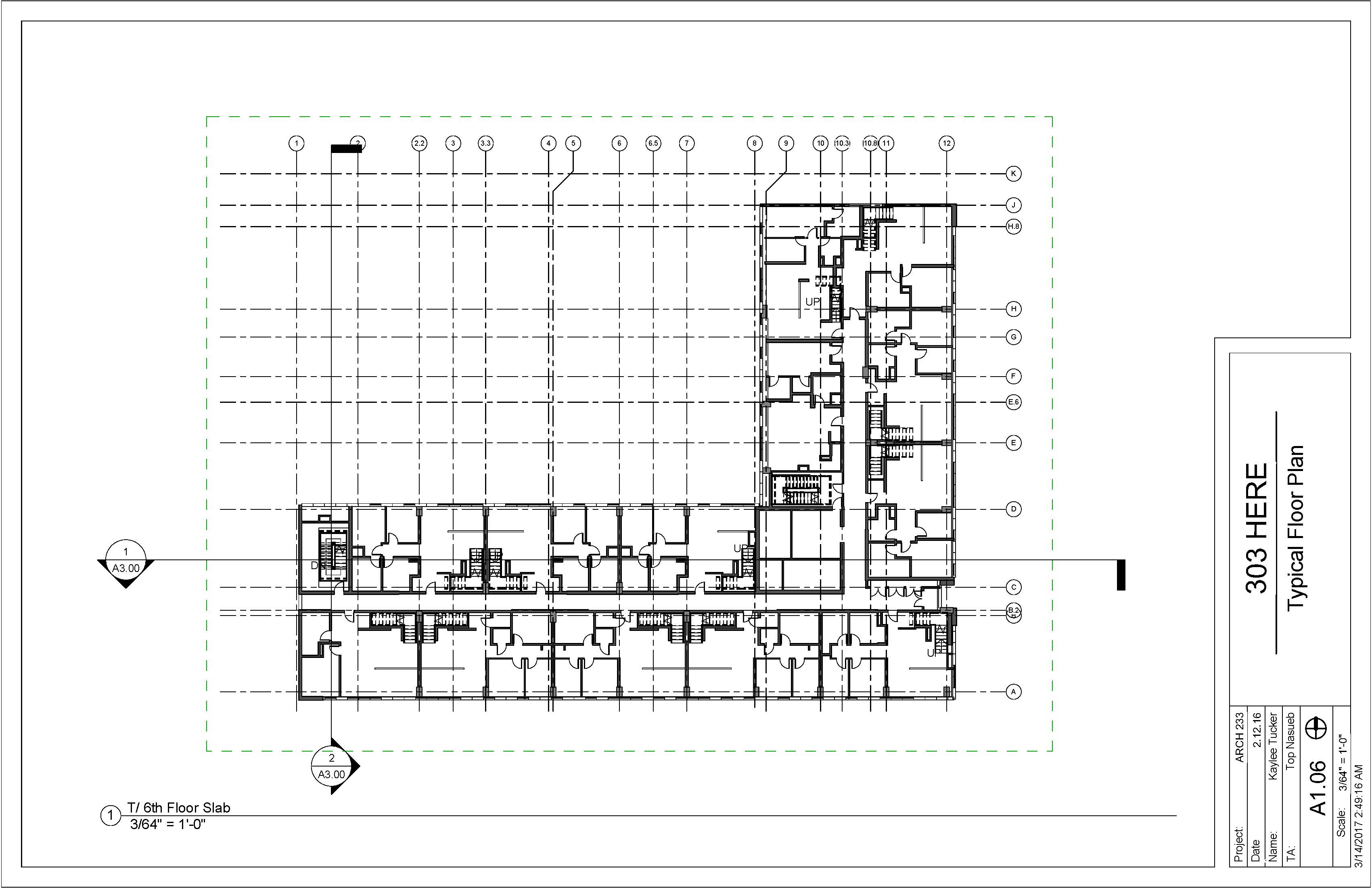
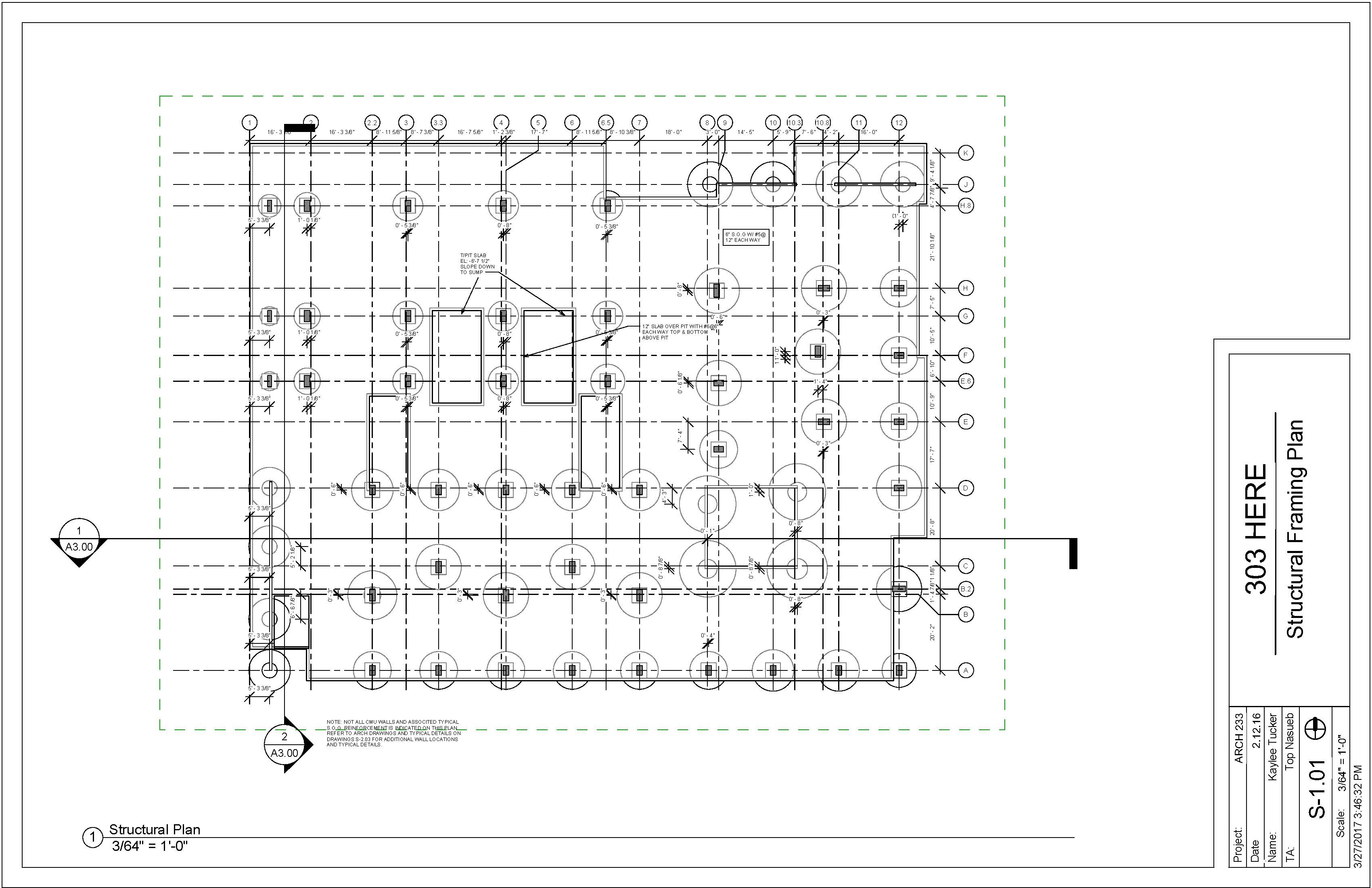
here construction documents
arch233- construction of buildings, spring 2017
308 e green st, champaign, il
prof. randy deustch, ta. top nasueb
revit